Dernier projet
Aménagement complet d’un Volkswagen LT-46 L2H2 en fourgon habitable : plans, modélisation 3D.
Projet réalisé en collaboration avec Cérès Travaux & Rénovation .
Réhabilitation Maison – Saint-Hippolyte-du-Fort
- Maison ancienne R+3
- Plans complets
- Organisation intérieure
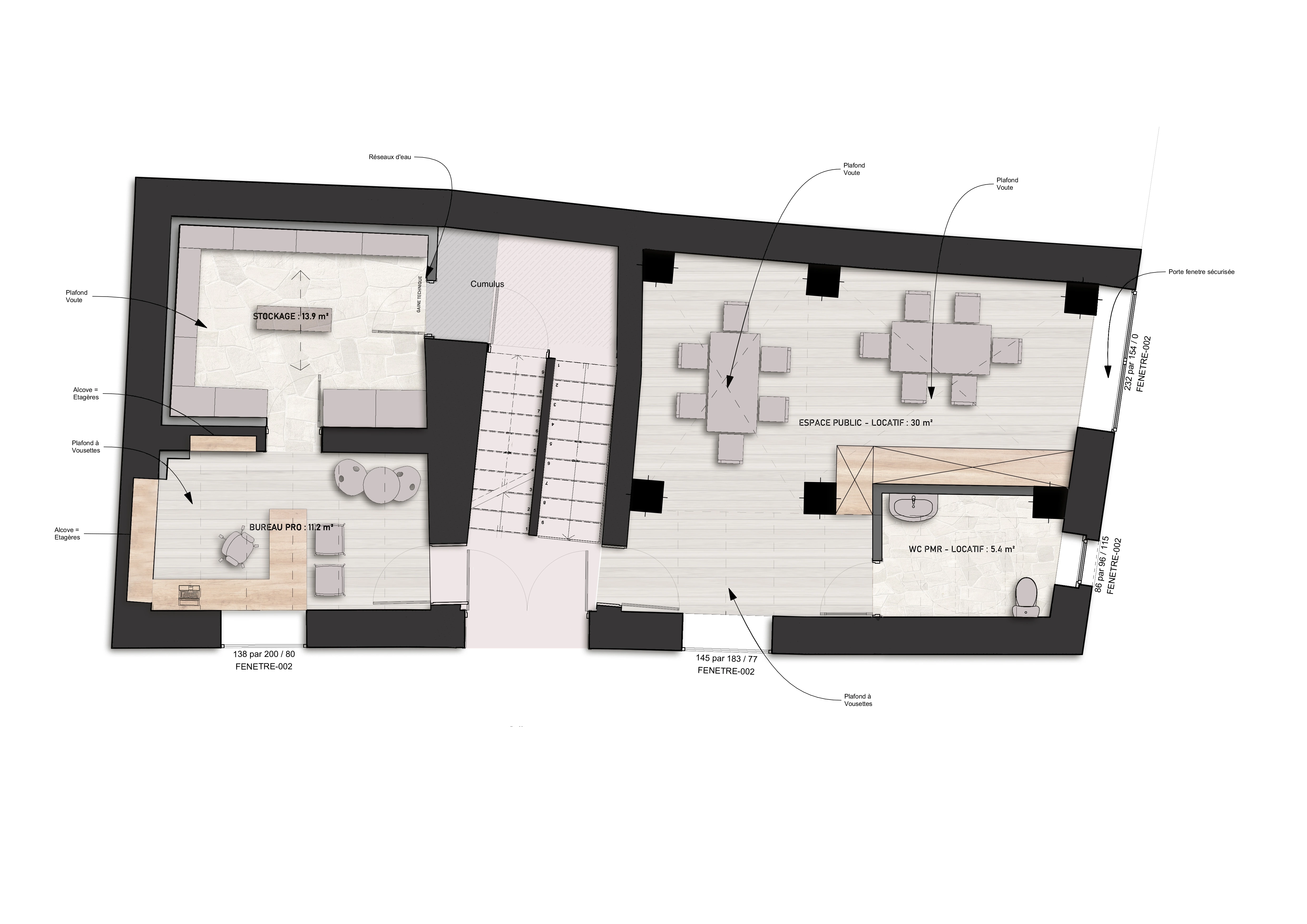
Le rez-de-chaussée comprend un bureau professionnel avec espace de stockage attenant, ainsi qu’une salle locative polyvalente pouvant accueillir des réunions ou activités associatives.
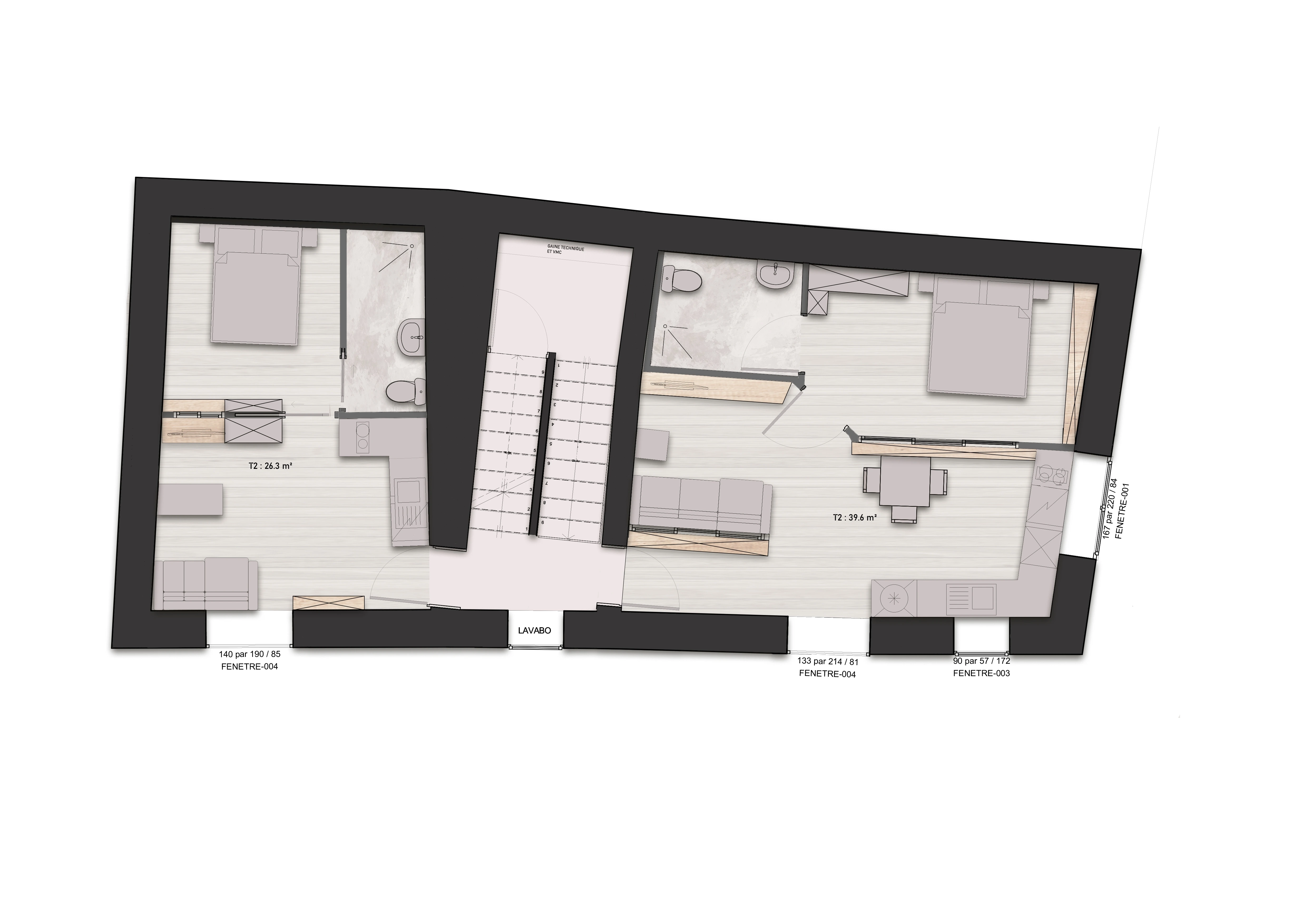
Le premier étage accueille deux logements indépendants : un T2 de 26,3 m² et un T2 plus spacieux de 39,6 m², chacun comprenant séjour, chambre et salle d’eau.
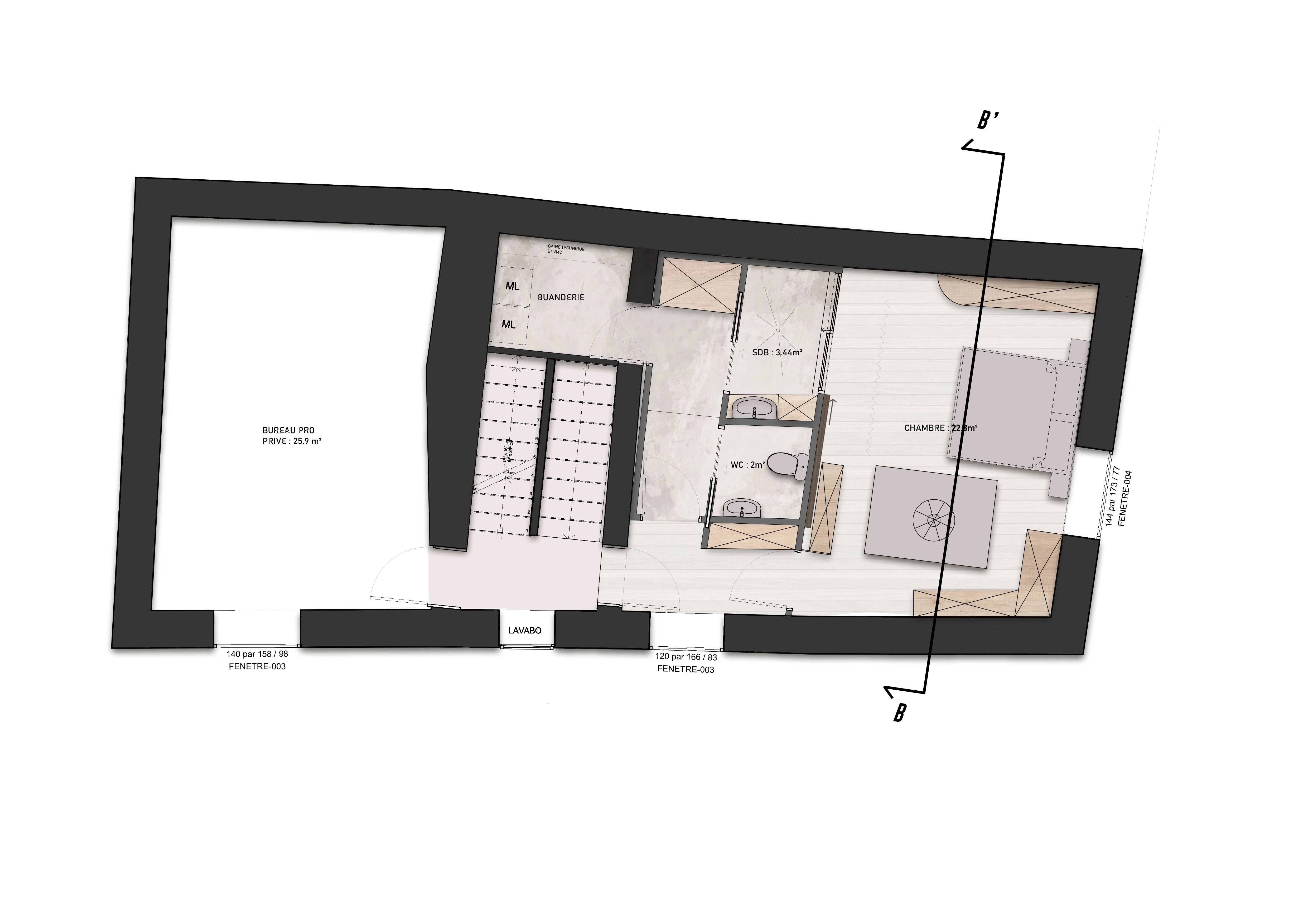
Le deuxième étage comprend un bureau professionnel privé de 25,9 m² et une grande chambre aménagée comme suite, avec toilettes discrètement intégrés et une douche visible ou occultée grâce à un système de porte coulissante en bois.
Le troisième étage offre un espace convivial avec un coin salon détente et une cuisine ouverte prolongée par la seule terrasse de l’immeuble, apportant lumière naturelle et vue dégagée.
×
Aménagement Studio – Causse de la Selle
- Conception intérieure
- Studio compact & fonctionnel
- Optimisation de l’espace
Plan d’ensemble du studio aménagé, pensé pour maximiser l’espace dans un volume restreint.
×